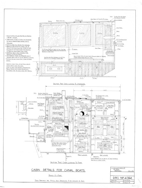
D0411.01
Yarwood's 1935 drawing showing details of the stern cabin for a canal narrowboat
Description
boat building drawing/ Yarwood/ cabin details through cabin looking to port drawing no. 4094/ 23-01-1935/ Original, ink on tracing linen, 630 x 780 mm.
Reference code
D0411.01




