971.0320
Ellesmere Port Hydraulic Installation
Description
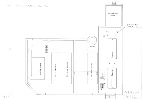
Manchester Ship Canal Company No 322/ hydraulic installation lower level Manchester Ship Canal / 1928
Date
1928
Reference code
971.0320
Extent & medium
420mm 320mm
Paper Copy
1/8" = 1ft
Paper Copy
1/8" = 1ft




